Деловен простор, Ко-работен простор
~ €2254/m²
Тафталиџе | Скопје - Карпош, Македонија
Соби
Бањи
Балкон/Тераса
Големина
Ориентација
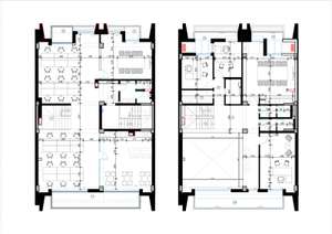
Нов, ексклузивен деловен простор со површина од 346 м2 во Тафталиџе.
На продажба е деловен простор во фаза „карабина“, со можност за внатрешна организација според желбите и потребите на купувачот.
Oбјектот располага со 175 м2 кровна тераса и 96 м2 гаражен простор, во кој можат да се паркираат до 6 возила.
Просторот е идеален за канцеларии, бизнис простории или друг тип на деловна намена. Се наоѓа на одлична локација во населбата Тафталиџе, со лесен пристап.
Совршен избор за оние што бараат модерен и флексибилен простор за своето деловно работење.
Продажен Агент - Елвин :
Контакт телефон: 0038978247268
Е-маил: sales@propertyone.mk





Имајте предвид дека пресметката за кредит е приближна и можеби не е целосно точна. За точни информации и реални услови за отплата, ве советуваме да ја посетите вашата банка.
Месечна рата
Вкупно за враќање
Вкупна камата
Износ на кредитот
Број на месечни рати
Каматна стапка
просечна од 3.5%
Сакате вашата банка да биде избор на купувачите на недвижности? Станете наш партнер и добијте потенцијални клиенти преку нашата платформа! Контактирајте не за повеќе информации.